Двухкомнатная квартира 50,20 м2 по ул. Юрина 182 за 4490000 руб.

Двухкомнатная квартира по ул. Юрина, 182 в Барнауле
Цена 4 490 000 р. (89 442 р./м2)
Подать заявку на ипотеку
Адрес Юрина, 182
Этаж 1/10
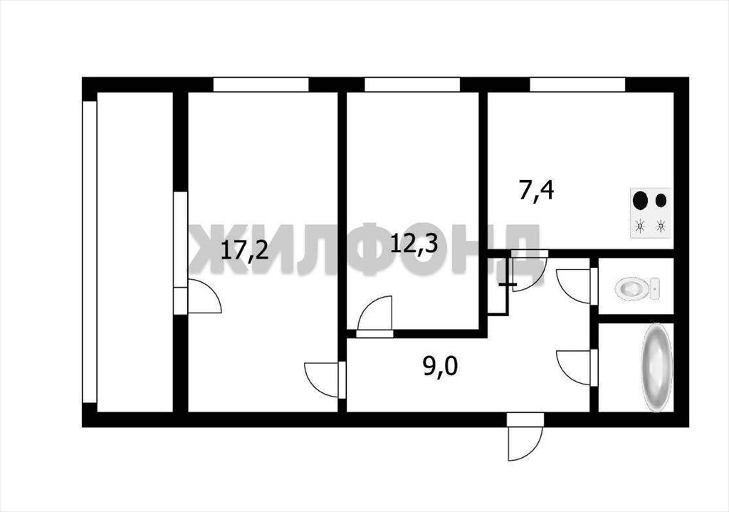
Площадь общая 50,2 м2, жилая 29,5 м2, кухни 7,4 м2
Кол-во комнат Двухкомнатная
2 комн. квартира по ул. Юрина. Общей площадью: 50.20 кв.м. УНИКАЛЬНОЕ ПРЕДЛОЖЕНИЕ! ! В продаже двухкомнатная квартира в районе кардиоцентра, удобная транспортная развязка, рядом детские сады, школы, поликлиника, парк Юбилейный. Большой двор с детской площадкой и достаточным количеством парковочных мест. Самая удобная 121 планировка, комнаты изолированы, что позволит с комфортом разместиться семьей. Состояние квартиры позволит воплотить все дизайнерские фантазии в ремонте по Вашему вкусу, и Вам не нужно переплачивать за чужой ремонт! Просторная лоджия дает возможность оборудовать кабинет или место отдыха, а также вместит зону хранения разных вещей. Чистый подъезд, хорошие соседи. 1 взрослый собственник, материнский капитал не использовался, без обременений и долгов. Документы готовы к сделке. Помогу одобрить ипотеку на лучших условиях. Подходит под все виды сертификатов. Записывайтесь на просмотр, покажем в удобное для Вас время. Измените жизнь к лучшему по бюджетной стоимости. Возможен обмен на вашу недвижимость. Возможна продажа в рассрочку. При звонке, пожалуйста, сообщите номер варианта - JV002022120145.
Описание дома
Этажность дома 10
Объявление № 23246297
Дата подачи:
2 октября 2025 г. 20:13
Дата обновления:
2 октября 2025 г. 22:26
Просмотров 18 Хотите продать быстрее?

Продавец
Любовь Ивановна
Показать номер телефона
Пожаловаться
Комментарии:
Добавить